Skip to content
Client
Private Owner
Category
Project Status
Completed
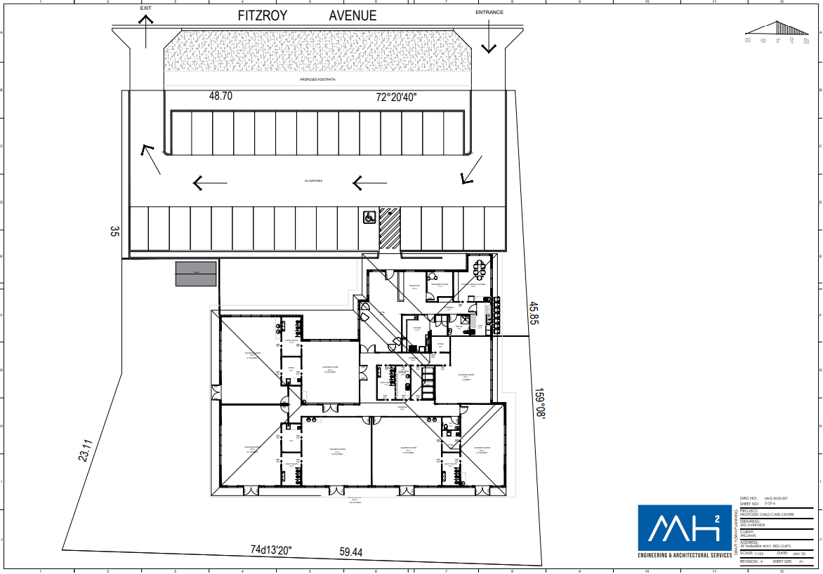
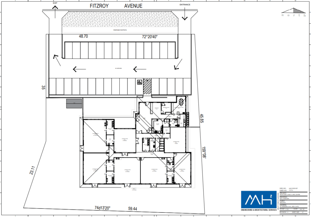
Location
Fitzroy Avenue, Red Cliffs

Architectural Design/ Civil Engineering

Concept plans for town planning and civil engineering design to successfully obtain town planning approval.